
PRODUCT CLASSIFICATION
产品分类
更新时间:2024-10-14
浏览次数:267摘 要:随着全球能源结构的转型和可再生能源的快速发展,储能技术逐渐成为调节能源供需、提高能源利用效率的关键环节,在这一背景下,分布式储能系统应运而生,成为应对能源不稳定性与波动性的有效手段。分布式储能借助小型化、模块化的储能设备,能够在用户端进行能量的存储与释放,从而实现对局部电网的灵活调节,这种系统不仅能够有效平衡可再生能源(如太阳能和风能)在发电过程中的间歇性和不稳定性,还能在电力需求高峰时提供可靠的电力支持,减轻对电网的压力。本文介绍了安科瑞Acrel-1000DP分布式储能监控系统在浙江嘉兴晋亿实业5MW分布式储能项目中的应用,该系统通过设计控制策略优化了企业的能源管理,可以有效降低电力成本、确保生产活动的连续性和稳定性。
关键词:分布式储能;控制策略;能源管理
一、项目概述
晋亿实业股份有限公司位于浙江省嘉兴市嘉善县惠民街道松海路66号厂区,属于220kV东云变供区,由东云变35kV晋流683线供电。
晋亿实业5MW分布式储能项目(以下简称“本项目")是某新能源科技有限公司在晋亿实业厂区内空地新建的一期规模为5MW/10MWh的铅碳电池储能系统(已取得备案2401-330421-04-01-898044),接入晋亿实业股份有限公司配电房10kV母线。储能系统平时用以给晋亿实业股份有限公司厂区日常生产负荷削峰填谷,运行模式为每天固定时间“两充两放",充电时间为0:00-7:00、11:00-13:00,放电时间为9:00-11:00、15:00-17:00,正常情况下储能系统所发电量“自发自用,不上网"。
二、配电房现状

图2.1配电房现状电气主接线
晋亿实业股份有限公司厂区内建设有35kV配电房1座,变压器2台,1#主变容量12500kVA,2#主变容量5000kVA,10kV采用单母分段接线模式。
负荷方面,2023年晋亿实业股份有限公司年最大下送功率约14.4MW,最大负载率约为82.44%,年平均负载率约68.57%;电源方面,晋亿实业目前已有5.03MWp光伏接入10kVI段母线上,通过1#主变上传至35kV晋流683线。
三、分布式储能设计

图3.1 储能站接入电气主接线图
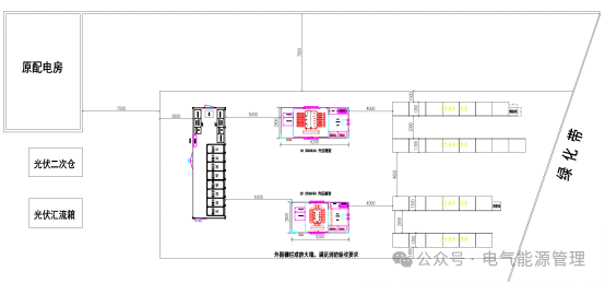
本项目在嘉善县惠民街道松海路66号晋亿实业厂区配电房东南侧空地位置建造5MW/10MWh储能项目工程,距离晋亿实业股份有限公司距离约100米。
储能单元由储能一体柜、变压器、汇流站组成。本项目配置储能容量为186kW/372kWh的磷酸铁锂储能一体柜27台,3000kVA变压器1台,2500kVA变压器1台,并建设一座10kV开关舱。本次15套186kW/372kWh(即2790kW/5580kWh)的磷酸铁锂储能一体柜接入1台3000kVA升压变,12套186kW/372kWh(即2232kW/4464kWh)的磷酸铁锂储能一体柜接入1台2500kVA升压变,将直流电逆变为690V交流电,最后升压变高压侧以10kV电压等级接入2座10kV开关舱的进线柜。

图3.2 储能站平面布置图
四、 技术方案
本项目引入Acrel-1000DP分布式储能监控系统,对整个储能站进行监测控制,并通过设计控制策略做到削峰填谷,即在电价处于峰价时放电,电价处于谷价时充电,每天固定时间两充两放,通过峰谷差价回收投资。
储能10kV开关舱进线柜配置线路保护装置,做到阶段式方向过流保护;并网柜配备防孤岛保护装置,在非计划孤岛情况下使储能系统脱离电网侧;就地箱变配备箱变测控装置,实时监测变压器的运行状态,收集电流、电压、温度等关键参数,并通过数据分析及时发现潜在故障,同时装置也支持远程监控和数据传输。
储能电站接入系统后,接入嘉善调度。本项目采用光纤以太网技术通信方式,光缆线路为:晋亿实业储能电站—光通信—东云变—光通信—嘉善供电公司,储能站接入光纤须配置光端机、路由器以及电力专用纵向加密装置。
4.1. 安全自动装置
1)AM6-FE频率电压紧急控制装置
装置能够实时监测电网的频率和电压,一旦检测到超出设定范围的异常情况,立即启动控制策略,通过调整发电机出力、切除部分负荷或投入补偿设备等方式,快速恢复电网的频率和电压至正常水平,确保电力供应的连续性和可靠性。
2)AM5SE-IS防孤岛装置
在电网失电的情况下,分布式电源未能够及时与电网断开连接,会形成孤岛状态,这种状态可能造成分布式电源不可控、电网恢复时的电压和频率不匹配等问题,也可能导致电力工作人员在不知情的情况下进行危险的操作。防孤岛装置通过实时监测电网状态,一旦检测到电网断电,能够在规定的时间内迅速切断分布式电源与电网的连接,从而保障电网的安全运行和维修人员的人身安全。
4.2. 箱变测控装置
AM6-PWC箱变测控装置是集保护、测控、通讯一体化的装置,全称为箱式变电站测控装置,用于箱变的监控和控制。装置能够对变压器的温度、电流、电压、负荷等关键参数进行全面监测,通过实时分析及时发现设备故障及潜在的安全隐患,同时,装置还具备过载保护、短路保护、过温保护等保护功能与远程监控、数据传输功能。
4.3. 控制策略
设计储能充放电原则是在尖峰时段全部放电,高峰时段根据负荷情况调整储能变流器功率,保证储能电池电量全部消纳。为防止电池充电过程中晋亿实业配变负荷过大超过限额,或者正常运行时配变负荷过小导致储能放电上送,对配变负荷进行实时监测,为储能系统设定充/放电负荷限值P充和P放。
电价处于谷价且P配变<P充时,储能系统进行充电;
电价处于峰价且P配变>P放时,储能系统进行放电。

图4.1 储能系统运行控制策略
五、 系统结构

图5.1系统拓扑图
本项目系统结构采用分
层分布式架构,能够高效、稳定地运行,满足现代工业自动化的需求,为企业提供强有力的技术支持,主要分为站控层、通信层和设备层三个核心部分:
站控层作为系统的管理与控制中心,承担着对整个系统的集中监控和管理功能。操作员可以通过该层实时监测系统状态,进行数据分析与处理。
通信层负责信息传递与数据交互,确保各个设备和系统组件之间能够无缝连接与协同工作。此层不仅支持多种网络拓扑结构,还能够根据实际应用场景的不同规模和需求进行灵活调整,极大地增强了系统的灵活性和可扩展性。
设备层包含各种硬件设备,是系统的基础执行单元。这些设备不仅负责实时采集现场数据,还能根据上级指令执行控制操作,是实现自动化操作的核心组成部分。
项目配置设备清单如下表所示:
表5.1 方案设备列表


六、 现场照片


七、系统功能
1.1. 系统总览
主要展示本系统的储能装机容量、储能当前充放电量、收益、SOC变化曲线以及电量变化曲线。

图7.1 系统总览
1.2. PCS监控
PCS作为储能系统与电网之间的桥梁,负责控制电池的充放电过程,将电池存储的直流电能转换为交流电能,或者将交流电能转换为直流电能以存储在电池中。系统监测显示PCS的运行状态、运行参数限值,交直流侧的运行状态、运行参数数据,系统对PCS的监控是确保储能系统高效、安全运行的关键。

图7.2 PCS状态监测界面
1.3. 电池监控
系统的电池监控是确保电池组安全、高效运行的关键。通过实时监测电池的电压、电流、温度等关键参数,电池管理系统(BMS)能够及时调整电池的工作状态,延长电池的使用寿命,并提高整个系统的效率和安全性。

图7.3 电池簇监控界面
1.4. 策略配置
通过策略配置,系统可以根据电网需求、可再生能源发电特性以及用户用电模式,自动调整充放电行为,以达到削峰填谷、提高电网稳定性、降低运行成本等目的。

图7.4 策略配置界面
八、结语
在当前能源转型的背景下,分布式储能系统与新能源发电的结合,正逐渐成为电力市场中一种重要的解决方案。通过合理设计控制策略,系统能够有效地与电网价格进行互动,实现峰谷套利和平滑输出,从而提升整体电力系统的经济性和稳定性。此外,随着智能电网技术的发展,系统的控制策略可以进一步优化,这种基于大数据和人工智能的控制方式,将为分布式储能的经济效益和操作效率提供强有力的支持。总的来说,分布式储能系统结合新能源发电的解决方案,不仅为电力市场带来了新的盈利模式,也为实现可持续发展目标贡献了重要力量。
参考文献
[1] 慈松,李宏佳,陈鑫,等.能源互联网重要基础支撑:分布式储能技术的探索与实践[J].中国科学:信息科学, 2014.DOI:CNKI:SUN:PZKX.0.2014-06-008.
[2] 唐文左,梁文举,崔荣,等.配电网中分布式储能系统的优化配置方法[J].电力建设, 2015, 36(4):38-45.DOI: 10.3969/j.issn.1000-7229.2015.04.007.
[3] 林莉.微网中储能系统管理与控制研究[D].西华大学,2013.DOI:10.7666/d.D345790.